540 Valley Forge Way

$1,098,000 1,242 SQ FT
$884 SQ/FT

540 Valley Forge Way

@ Hamilton - 15 - Campbell, Campbell

Map direct
  • 3 Bed
  • 3 (2/1) Bath
  • 2 Park
  • 1,242 sqft
  • CAMPBELL
  • Payment calculator
DOM
4
T/H
  • Favorite
  • Hide
Message Alexandra Cowley

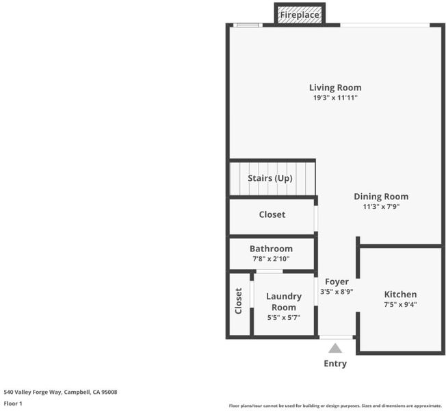
Discover this beautiful and affordable corner-unit 3-bedroom, 1,242 sq. ft. townhome in one of Central Campbells most desirable neighborhoods. This well-maintained residence features fresh interior paint and new luxury vinyl flooring throughout. The inviting living room flows into a cozy, functional kitchen, with an in-unit laundry area and convenient half bath on the main level. Upstairs are three private bedrooms, including a primary suite with a walk-in closet and organizer, all offering windows for natural light and fresh air. The home is equipped with central AC and an attic electric fan for year-round cooling. Enjoy a relaxing private backyard perfect for unwinding. Located in the quiet Hamilton East community, residents enjoy a sparkling pool, mature trees, and a peaceful environment. Served by a good school district and close to shopping, dining, markets, and banks. With quick freeway access, commuting to Sunnyvale, Cupertino, and nearby tech companies is easy and convenientan excellent opportunity to own in prime Campbell.

Days on Market
4 days
Current Status
Active
Original Price
$1,098,000
List Price
$1,098,000
On Market Date
Dec 11, 2025
Property Type
Townhouse
Area
15 - Campbell
Zip Code
95008
MLS ID
ML82029255
APN
305-14-044
Year Built
1975
Stories in Building
2
Possession
COE
Data Source
MLSL
Origin MLS System
MLSListings, Inc.
Bed
3
Bath
3 (2/1)
Granite, Half on Ground Floor, Shower and Tub, Stall Shower, Tub
Parking
2
Attached Garage, Enclosed, Guest / Visitor Parking, On Street
SQ FT
1,242
SQ FT Source
Unavailable
Lot SQ FT
1,496.0
Lot Acres
0.034343 Acres
Kitchen
Countertop - Granite, Dishwasher, Exhaust Fan, Garbage Disposal, Hood Over Range, Oven Range - Electric
Cooling
Central AC
Dining Room
Dining Area in Family Room
Disclosures
Natural Hazard Disclosure
Family Room
Kitchen / Family Room Combo
Flooring
Laminate
Foundation
Concrete Slab
Fire Place
Gas Log
Heating
Central Forced Air - Gas, Forced Air
Laundry
In Utility Room, Washer / Dryer
Possession
COE
* Fee
$515
Name
Community Management Services
Phone
408-292-4121
*Fee includes
Insurance - Common Area, Landscaping / Gardening, and Maintenance - Common Area

MLS and other Information regarding properties for sale as shown in Theo have been obtained from various sources such as sellers, public records, agents and other third parties. This information may relate to the condition of the property, permitted or unpermitted uses, zoning, square footage, lot size/acreage or other matters affecting value or desirability. Unless otherwise indicated in writing, neither brokers, agents nor Theo have verified, or will verify, such information. If any such information is important to buyer in determining whether to buy, the price to pay or intended use of the property, buyer is urged to conduct their own investigation with qualified professionals, satisfy themselves with respect to that information, and to rely solely on the results of that investigation.

School data provided by GreatSchools. School service boundaries are intended to be used as reference only. To verify enrollment eligibility for a property, contact the school directly.

Listings © 2025 MLSListings Inc

Copyright © 2025 Theo Inc. All Rights Reserved