$1,550,000
2,700
SQ FT
$574
SQ/FT
563 Jefferson Street
@ Stockton St - Napa
- 3 Bed
- 2 Bath
- 5 Park
- 2,700 sqft
- Napa
-
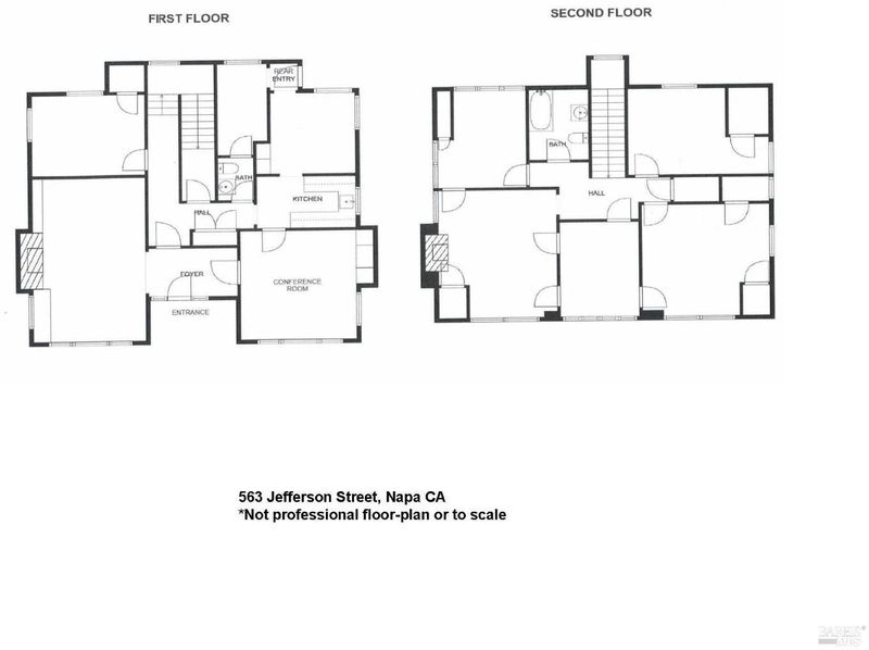
Charming converted Craftsman-style building located across from Fuller Park with great visibility and charming curb appeal in one of Napa's most desirable areas. Zoned OC (Office Commercial) with live/work potential, this two-story well maintained property offers approx. 2,700 sq ft with 7 private offices, a large conference room, welcoming reception area, cozy kitchen, and 2 restrooms. Classic architectural details such as hardwood floors, built-in cabinetry, operable windows, and 2 decorative fireplaces bring warmth and character. Ideal for professional or creative use. Five on-site parking spaces plus additional street parking. A unique opportunity to own a distinctive commercial space just blocks from Napa's shops, dining, and wine country attractions. Buyer to verify zoning and permitted uses.
- Days on Market
- 1 day
- Current Status
- Active
- Original Price
- $1,550,000
- List Price
- $1,550,000
- On Market Date
- Dec 12, 2025
- Property Type
- Single Family Residence
- Area
- Napa
- Zip Code
- 94559
- MLS ID
- 325102912
- APN
- 004-156-004-000
- Year Built
- 1914
- Stories in Building
- Unavailable
- Possession
- Close Of Escrow
- Data Source
- BAREIS
- Origin MLS System
Napa Christian Campus of Education School
Private K-12 Combined Elementary And Secondary, Religious, Coed
Students: 126 Distance: 0.3mi
Shearer Charter School
Public K-5 Elementary
Students: 480 Distance: 0.3mi
Blue Oak School
Private K-8 Nonprofit
Students: 145 Distance: 0.4mi
River Charter School
Charter 6-8 Middle
Students: 390 Distance: 0.6mi
Harvest Middle School
Public 6-8 Middle
Students: 799 Distance: 0.6mi
Calvary Christian Academy
Private PK-12 Combined Elementary And Secondary, Religious, Coed
Students: NA Distance: 0.6mi
- Bed
- 3
- Bath
- 2
- Parking
- 5
- No Garage, Uncovered Parking Spaces 2+, See Remarks
- SQ FT
- 2,700
- SQ FT Source
- Not Verified
- Lot SQ FT
- 7,405.0
- Lot Acres
- 0.17 Acres
- Cooling
- Central
- Fire Place
- Other
- Heating
- Central
- Laundry
- Other
- Upper Level
- Bedroom(s), Partial Bath(s)
- Main Level
- Dining Room, Kitchen, Living Room, Partial Bath(s)
- Possession
- Close Of Escrow
- Fee
- $0
MLS and other Information regarding properties for sale as shown in Theo have been obtained from various sources such as sellers, public records, agents and other third parties. This information may relate to the condition of the property, permitted or unpermitted uses, zoning, square footage, lot size/acreage or other matters affecting value or desirability. Unless otherwise indicated in writing, neither brokers, agents nor Theo have verified, or will verify, such information. If any such information is important to buyer in determining whether to buy, the price to pay or intended use of the property, buyer is urged to conduct their own investigation with qualified professionals, satisfy themselves with respect to that information, and to rely solely on the results of that investigation.
School data provided by GreatSchools. School service boundaries are intended to be used as reference only. To verify enrollment eligibility for a property, contact the school directly.
























































